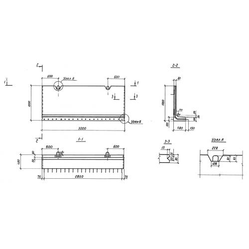
Г 10.30

Чертеж изделия:
Характеристики изделия:
ПараметрЗначение
длина3000 мм
ширина630 мм
высота1000 мм
вес950 кг
серия3.820.1-73

Г 10.30 Г-образная конструкция для водохозяйственного строительства по серии 3.820.1-73.