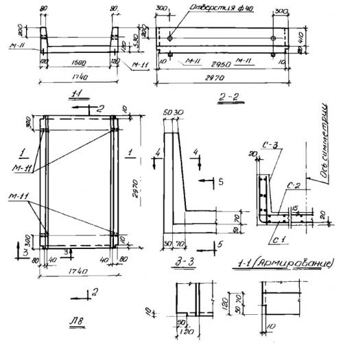
Л 8 лоток

Чертеж изделия:
Характеристики изделия:
ПараметрЗначение
длина5970 мм
ширина1160 мм
высота1000 мм
масса3880 кг
нормативный документСерия 3.900.1-12

Л 8  Лотки теплотрасс по Серии 3.900.1-12.