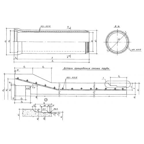
ТНН 120.50

Чертеж изделия:
Характеристики изделия:
ПараметрЗначение
длина5170 мм
ширина1684 мм
высота1684 мм
вес7750 кг
серия3.901.1-15

ТНН 120.50 Трубы низконапорные центобежнопрокатные по серии 3.901.1-15.