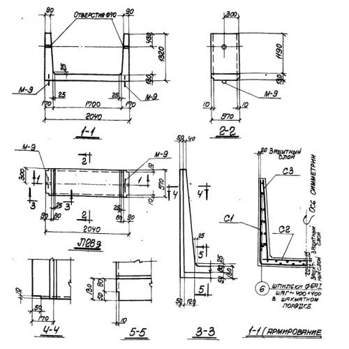
Л 28д
Характеристики изделия:
| Параметр | Значение |
|---|---|
| длина | 2040 мм |
| ширина | 570 мм |
| высота | 1320 мм |
| вес | 800 кг |
| серия | ХТР 1-1 |
Цена:
Рассчитать стоимостьЛ 28д Лотки по серии ХТР 01-01.
| Параметр | Значение |
|---|---|
| длина | 2040 мм |
| ширина | 570 мм |
| высота | 1320 мм |
| вес | 800 кг |
| серия | ХТР 1-1 |
Л 28д Лотки по серии ХТР 01-01.
