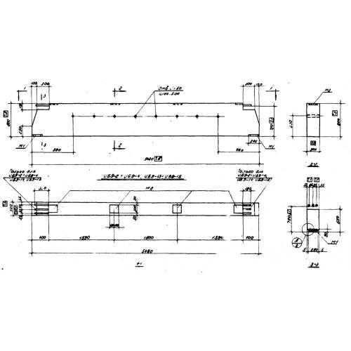
ИБ 9 ригели прямоугольного сечение
Характеристики изделия:
| Параметр | Значение |
|---|---|
| длина | 5480 мм |
| ширина | 300 мм |
| высота | 800 мм |
| масса | 3200 кг |
| нормативный документ | Серия ИИ 23-3/70 |
Цена:
Рассчитать стоимостьИБ 9 Двухполочные (тавровые) ригели по Серии ИИ 23-3/70.
