ПСТ 3

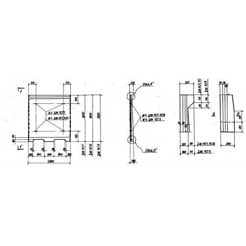
Чертеж изделия:
Характеристики изделия:
ПараметрЗначение
длина2980 мм
ширина3350 мм
высота200 мм
вес4500 кг
серияИС-01-05

ПСТ 3 Плиты стеновые по серии ИС-01-05.