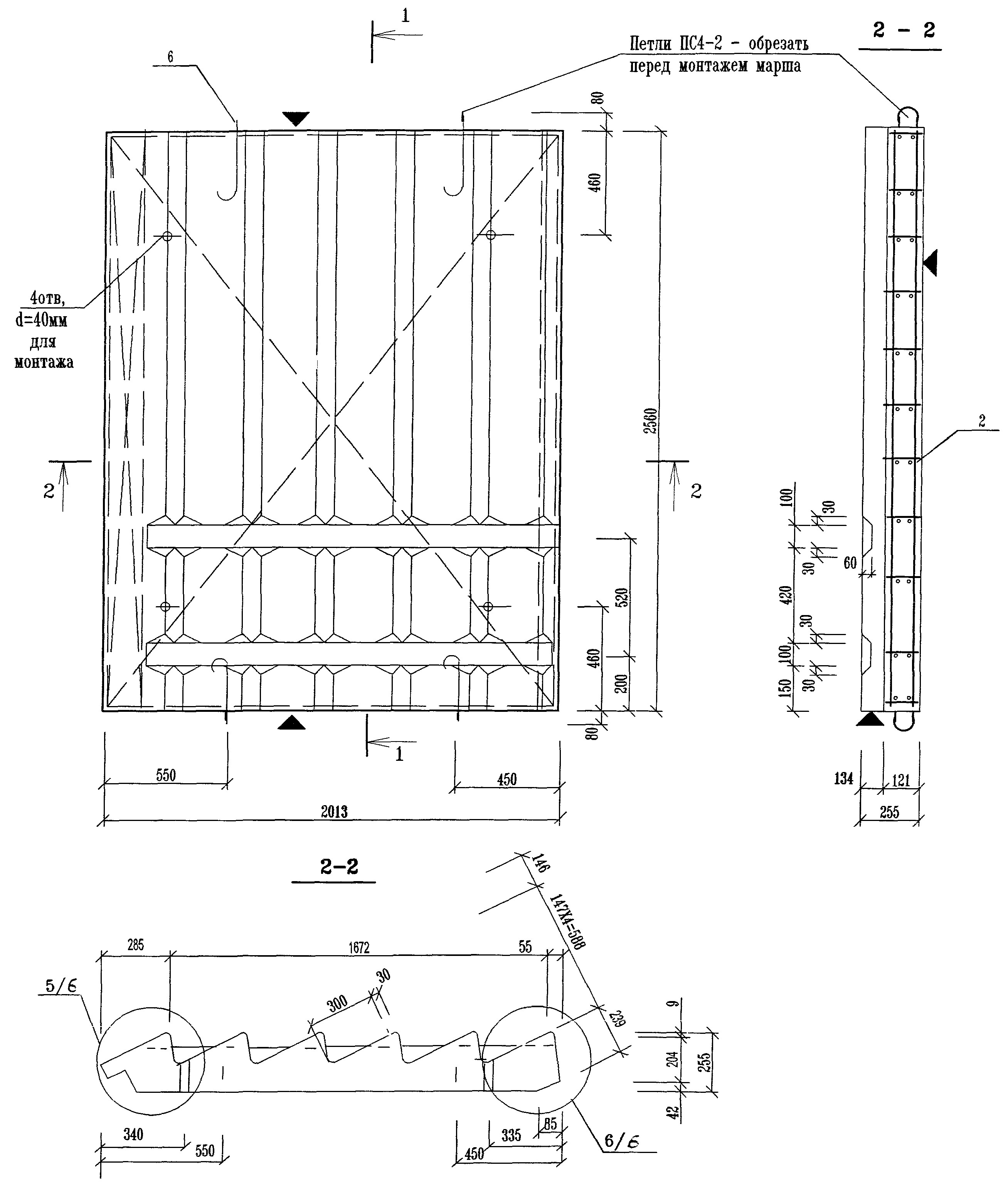
ЛМ 3

Чертеж изделия:
Характеристики изделия:
ПараметрЗначение
Длина L2013 мм
Ширина В2560 мм
Высота Н255 мм
Вес2275 кг
СерияИЖ 4.2-1
Норма погрузки на машину (20тн)8 шт
Вагонная норма погрузки-

Лестничный марш ЛМ 3 представленные в серии ИЖ 4.2-1 изготовлены без фризовых ступеней и с гладкой поверхностью бетона. Используются марши при строительстве лестниц в жилых зданиях с высотой 3 метра.