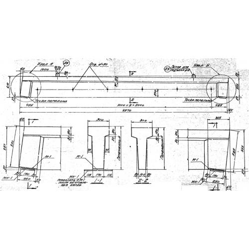
БО 6 балки односкатные

Чертеж изделия:
Характеристики изделия:
ПараметрЗначение
длина5970 мм
ширина300 мм
высота614 мм
масса1500 кг
нормативный документСерия ПК 01-115

БО 6 Балки односкатные таврового сечения по Серии ПК 01-115.