ПК
Характеристики изделия:
| Параметр | Значение |
|---|---|
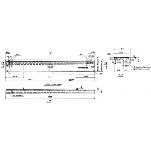
| длина | 5980 мм |
| ширина | 650 мм |
| высота | 250 мм |
| вес | 1175 кг |
| серия | СТ 02-12/61 |
Цена:
Рассчитать стоимостьПК Плиты карнизные по серии СТ 02-12/61.
| Параметр | Значение |
|---|---|
| длина | 5980 мм |
| ширина | 650 мм |
| высота | 250 мм |
| вес | 1175 кг |
| серия | СТ 02-12/61 |
ПК Плиты карнизные по серии СТ 02-12/61.
