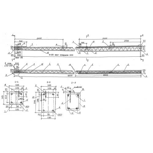
СВ 95

Чертеж изделия:
Характеристики изделия:
ПараметрЗначение
длина9500 мм
ширина165 мм
высота240 мм
масса750 кг
нормативный документШифр 20.0139

СВ 95 Стойки вибрированные по Шифру 20.0139.