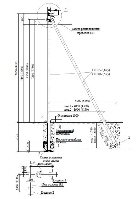
ПУА 29

Чертеж изделия:
Характеристики изделия:
ПараметрЗначение
длина10075 мм
ширина205 мм
высота280 мм
масса1175 кг
нормативный документШифр 26.0085

ПУА 29  Переходные угловые анкерные одноцепные опоры Шифр 26.0085.