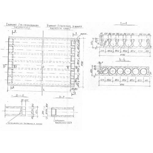
ПЭ 28.12

Чертеж изделия:
Характеристики изделия:
ПараметрЗначение
длина2780 мм
ширина1196 мм
высота220 мм
вес950 кг
шифрСК 1223

ПЭ 28.12 Плиты многопустотные безопалубочного формования по Шифру СК 1223.