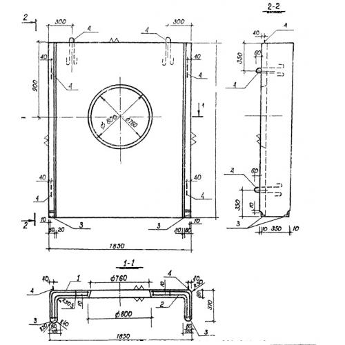
МЖ 1
Характеристики изделия:
| Параметр | Значение |
|---|---|
| длина | 1850 мм |
| ширина | 370 мм |
| высота | 2200 мм |
| вес | 1000 кг |
| серия | ТП 310-4-1 |
Цена:
Рассчитать стоимостьМЖ 1 Малые железобетонные архитектурные формы по проекту ТП 310-4-1.
| Параметр | Значение |
|---|---|
| длина | 1850 мм |
| ширина | 370 мм |
| высота | 2200 мм |
| вес | 1000 кг |
| серия | ТП 310-4-1 |
МЖ 1 Малые железобетонные архитектурные формы по проекту ТП 310-4-1.
