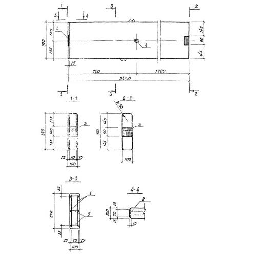
МЖ 3-3

Чертеж изделия:
Характеристики изделия:
ПараметрЗначение
длина2400 мм
ширина100 мм
высота370 мм
вес212 кг
серияТП 310-4-1

МЖ 3-3 Малые железобетонные архитектурные формы по проекту ТП 310-4-1.