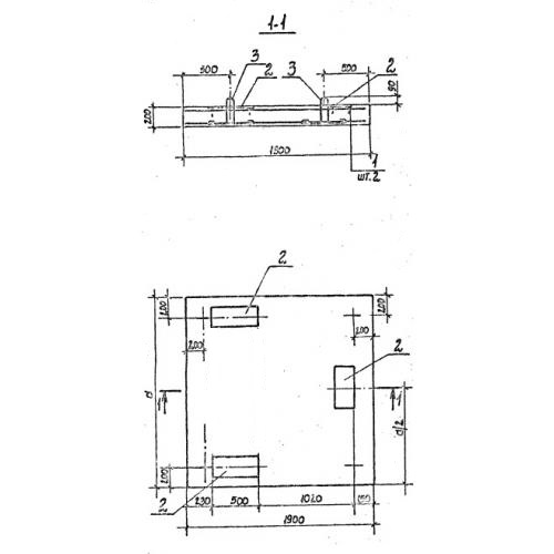
П-5
Характеристики изделия:
| Параметр | Значение |
|---|---|
| длина | 1900 мм |
| ширина | 3000 мм |
| высота | 290 мм |
| вес | 3000 кг |
| серия | ТП 901-1-60.86 |
Цена:
Рассчитать стоимостьП-5 Плиты для затопленных водоприемников по проекту ТП 901-1-60.86.
| Параметр | Значение |
|---|---|
| длина | 1900 мм |
| ширина | 3000 мм |
| высота | 290 мм |
| вес | 3000 кг |
| серия | ТП 901-1-60.86 |
П-5 Плиты для затопленных водоприемников по проекту ТП 901-1-60.86.
