Б 18
Характеристики изделия:
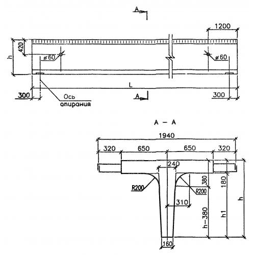
| Параметр | Значение |
|---|---|
| длина | 18000 мм |
| ширина | 1490 мм |
| высота | 1080 мм |
| вес | 19400 кг |
| серия | ТУ 5851-008-01388383-2002 |
Цена:
Рассчитать стоимостьБ 18 Балки пролетного строения по ТУ 5851-008-01388383-2002.
| Параметр | Значение |
|---|---|
| длина | 18000 мм |
| ширина | 1490 мм |
| высота | 1080 мм |
| вес | 19400 кг |
| серия | ТУ 5851-008-01388383-2002 |
Б 18 Балки пролетного строения по ТУ 5851-008-01388383-2002.
